AIA East Tennessee ADU Competition
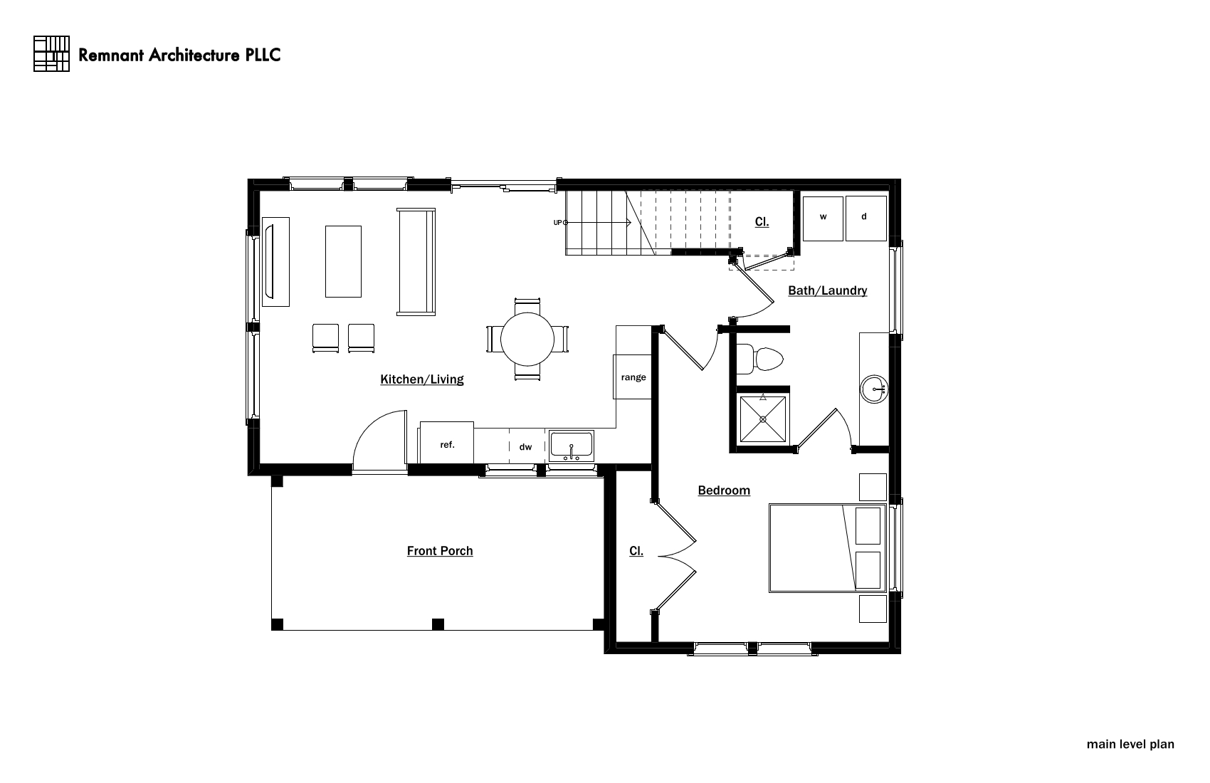
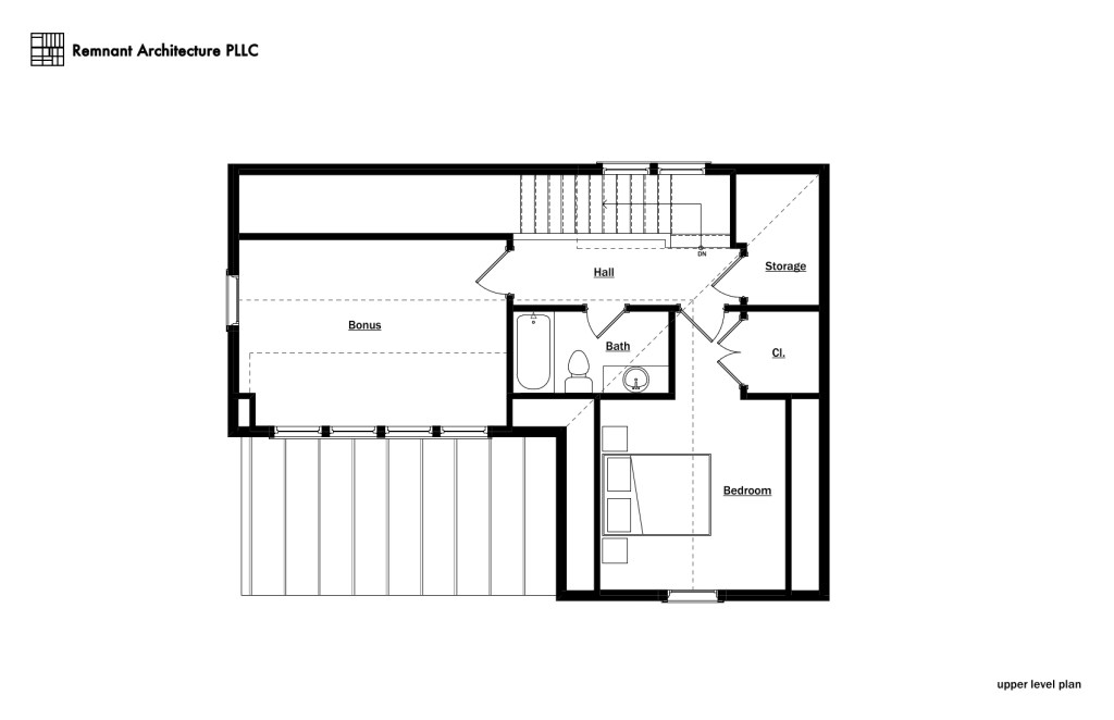
The goal of this competition was to create prototypes for Accessory Dwelling Units (ADUs) to combat the affordable housing crisis. Remnant Architecture’s entry was a 2 bedroom, 2 bath unit with a 736 sf footprint. The main level includes all the basic functions of a dwelling unit so that the upper level could be finished in a later phase to keep upfront costs lower. The upper level includes a second bedroom/bathroom, which are 354 sf. There is an optional bonus room on the upper level (202 sf), which if not included could give a vaulted ceiling to the living room. The upper level is built into the roof so that the ADU appears more like a one story structure, while taking advantage of the allowable space for accessory structures. The form of this ADU was derived from the folk victorian house, as those houses tended to have a smaller footprint and will blend into traditional neighborhoods.

3D View

Main Level Plan

Upper Level Plan

Front Elevation

Side Elevations

Rear Elevation
