Fountain City Farmhouse Addition
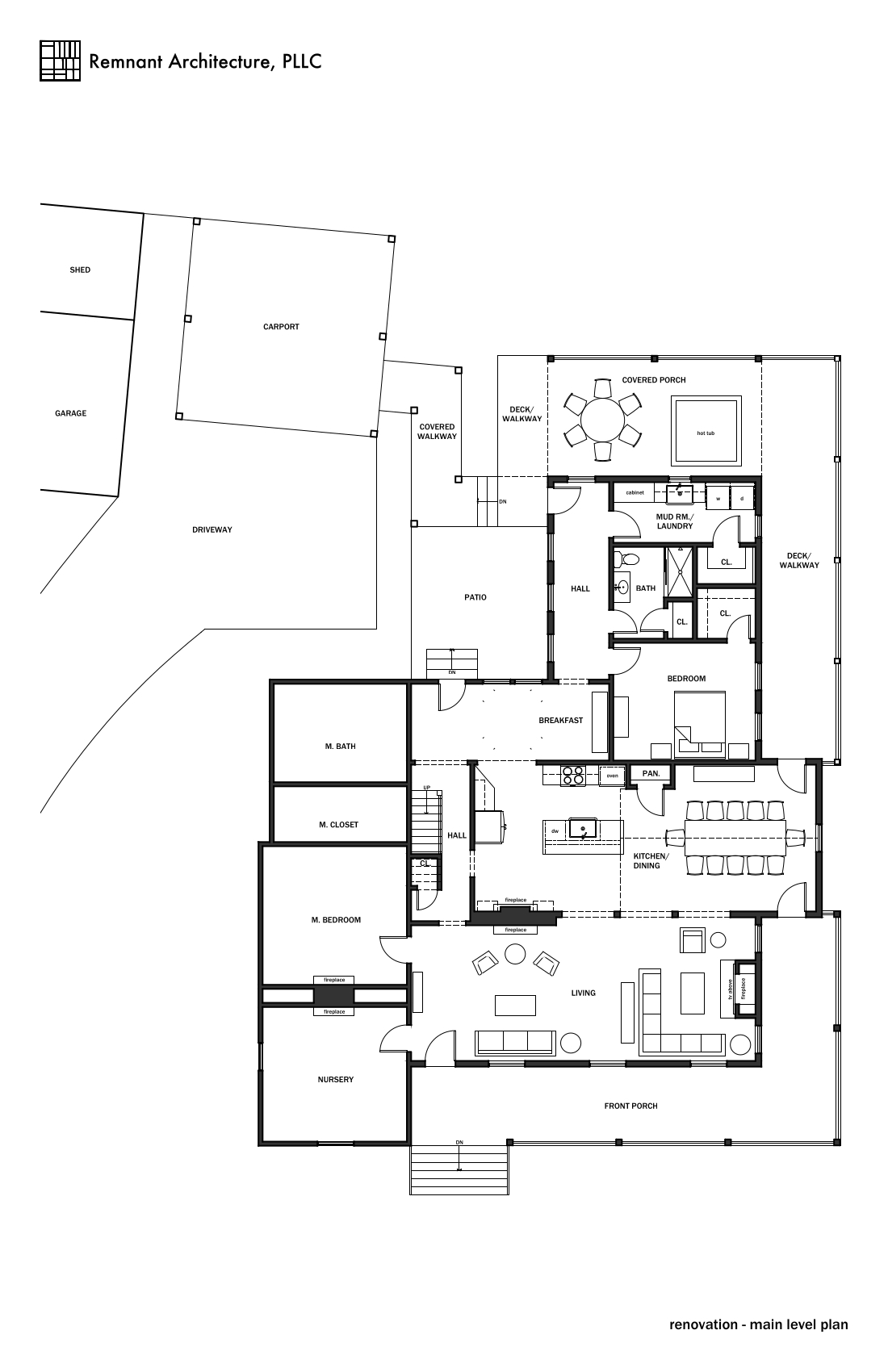
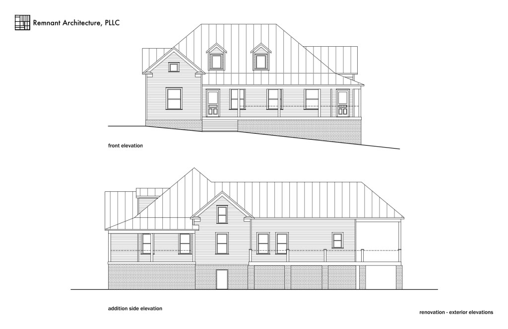
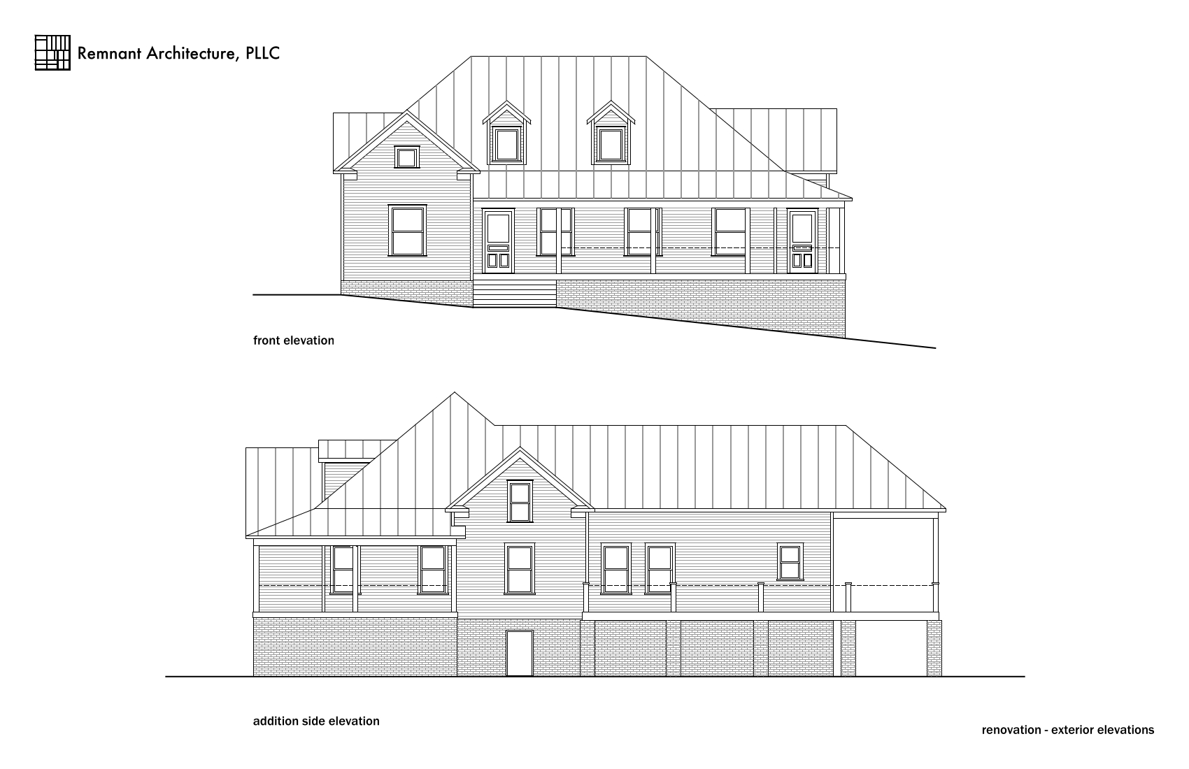
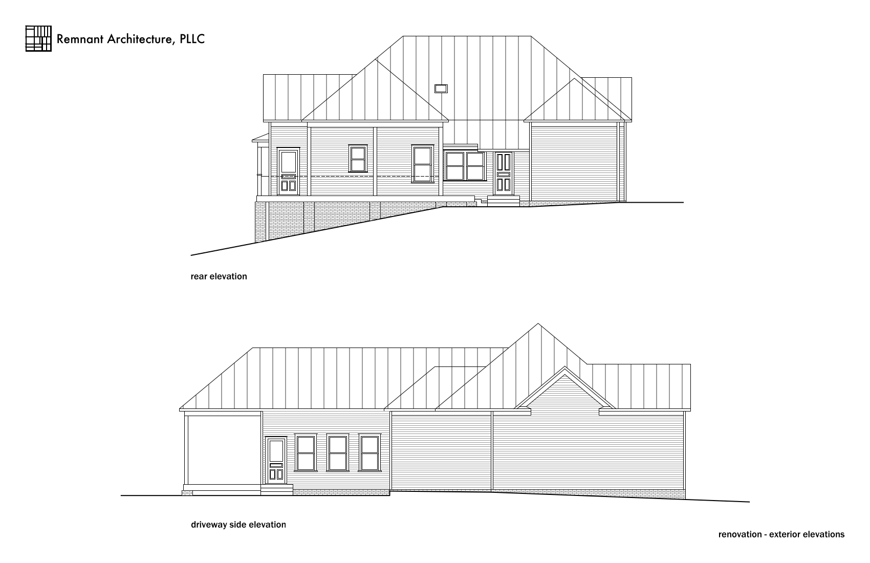
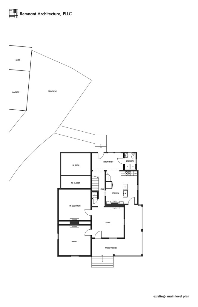
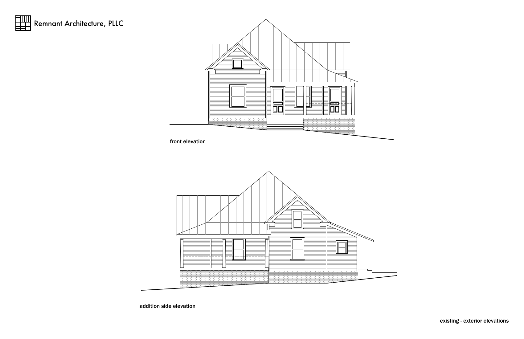
An older house on a large lot in Fountain City was expanded for a growing family. The living room was enlarged, and a new dining room was added adjacent to the kitchen with a vaulted ceiling. An additional bedroom, bath, and new laundry room were added onto the rear of the house. New dormers on the front of the house provide curb appeal and also make a room into an official bedroom, bringing the total bedrooms to the house from three to five. The charm of the original farmhouse was replicated into the expansion by elongating the existing facade.
“We think that had we not utilized Remnant Architecture’s services, there is a good chance we could have ended up very unhappy with the final product on our addition as it could be sloppy, haphazard or look like it was ‘plopped on’ to our home. What we believe we are getting is a seamless addition that looks like it was there from the start.”
Dana & Daniel
homeowners
Structural Engineer: FE Design & Engineering
Contractor: Forks River Construction
Photographer: Nvelop Architectural Photography
Awards: Honor Fountain City Day 2025 Residential Restoration

Renovation Front View

Renovation Front Porch View

Renovation Front Porch View

Renovation Front View

Renovation Front View

Renovation Side View

Renovation Rear View

Renovation Side View

Renovation Living Room View

Renovation Dining Room View

Renovation Hallway View

Renovation Laundry Room View

Renovation Hallway View

Renovation Main Level Floor Plan

Renovation Upper Level Floor Plan

Front & Side Renovation Elevations

Rear & Driveway Side Renovation Elevations

Existing Front View

Existing Main Level Floor Plan

Existing Upper Level Floor Plan

Front & Addition Side Existing Elevations

Rear & Driveway Side Existing Elevations
