Island Home Craftsman Attic Library Addition
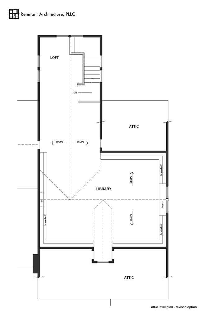
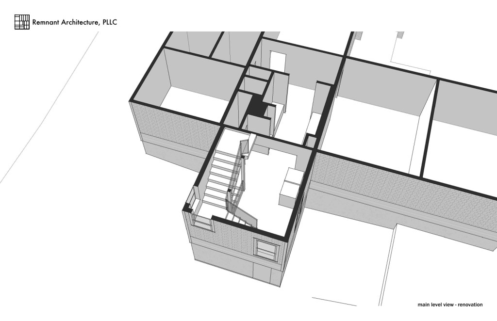
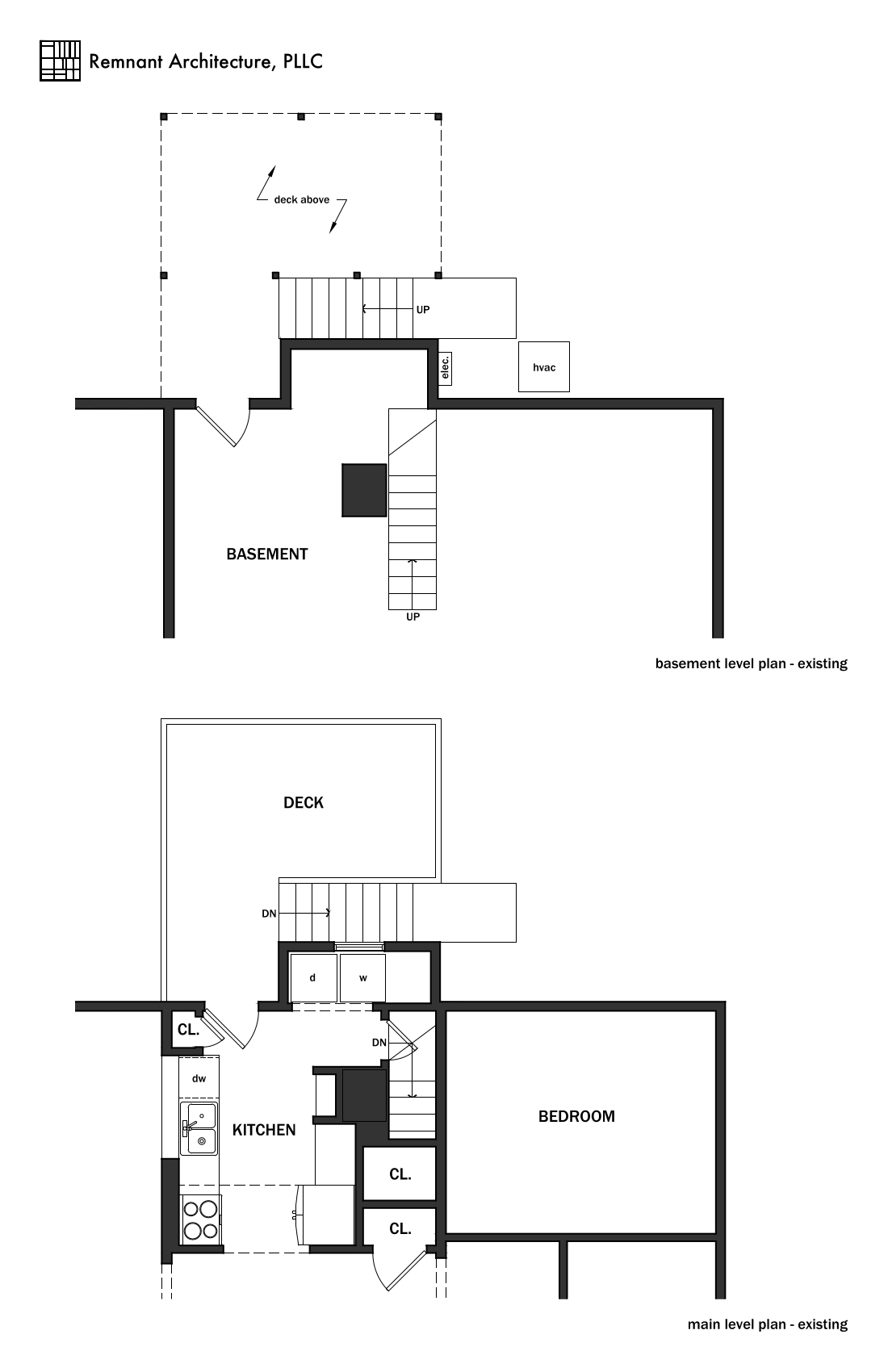
A modest craftsman bungalow had an unfinished attic that was perfect for the owner’s book collection to turn into a proper library, as well as a secondary living space. A stair needed to be added onto the house so the new attic library could be easily accessed. The stair addition provided an opportunity for the washer and dryer to be moved out of the kitchen and create a laundry room.
Contractor: Forks River Construction

Attic Renovation Plan

Basement & Main Level Renovation Plans

Exterior Renovation View

Exterior Renovation View

Exterior Renovation View

Attic Level Renovation View

Attic Level Renovation View

Main Level Renovation View

Main Level Renovation View

Basement Level Renovation View

Basement Level Renovation View

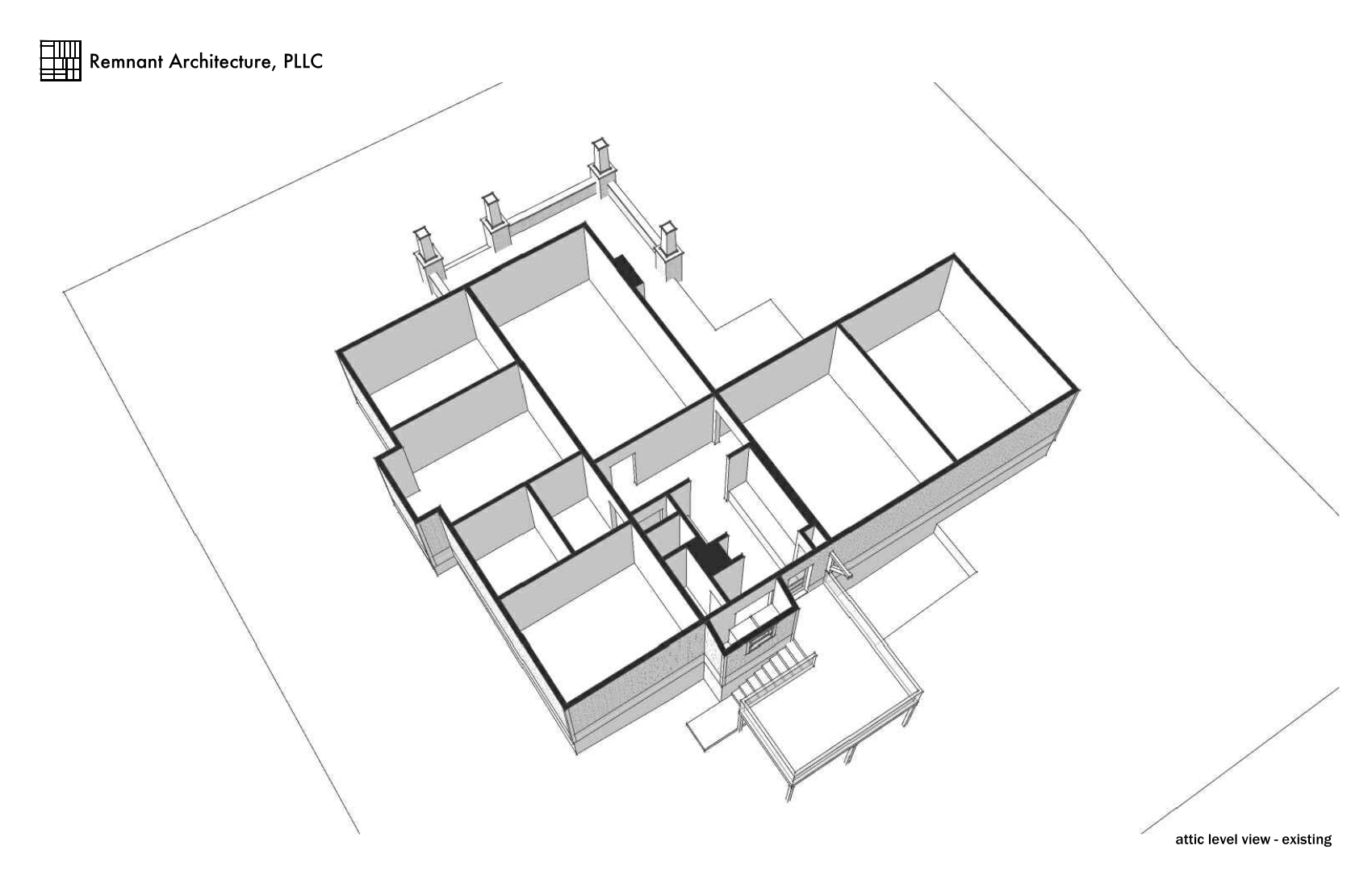
Attic Level Existing Plan

Attic Level Existing Plan

Exterior Existing View

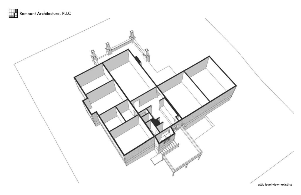
Attic Level Existing View

Main Level Existing View

Basement Level Existing View
