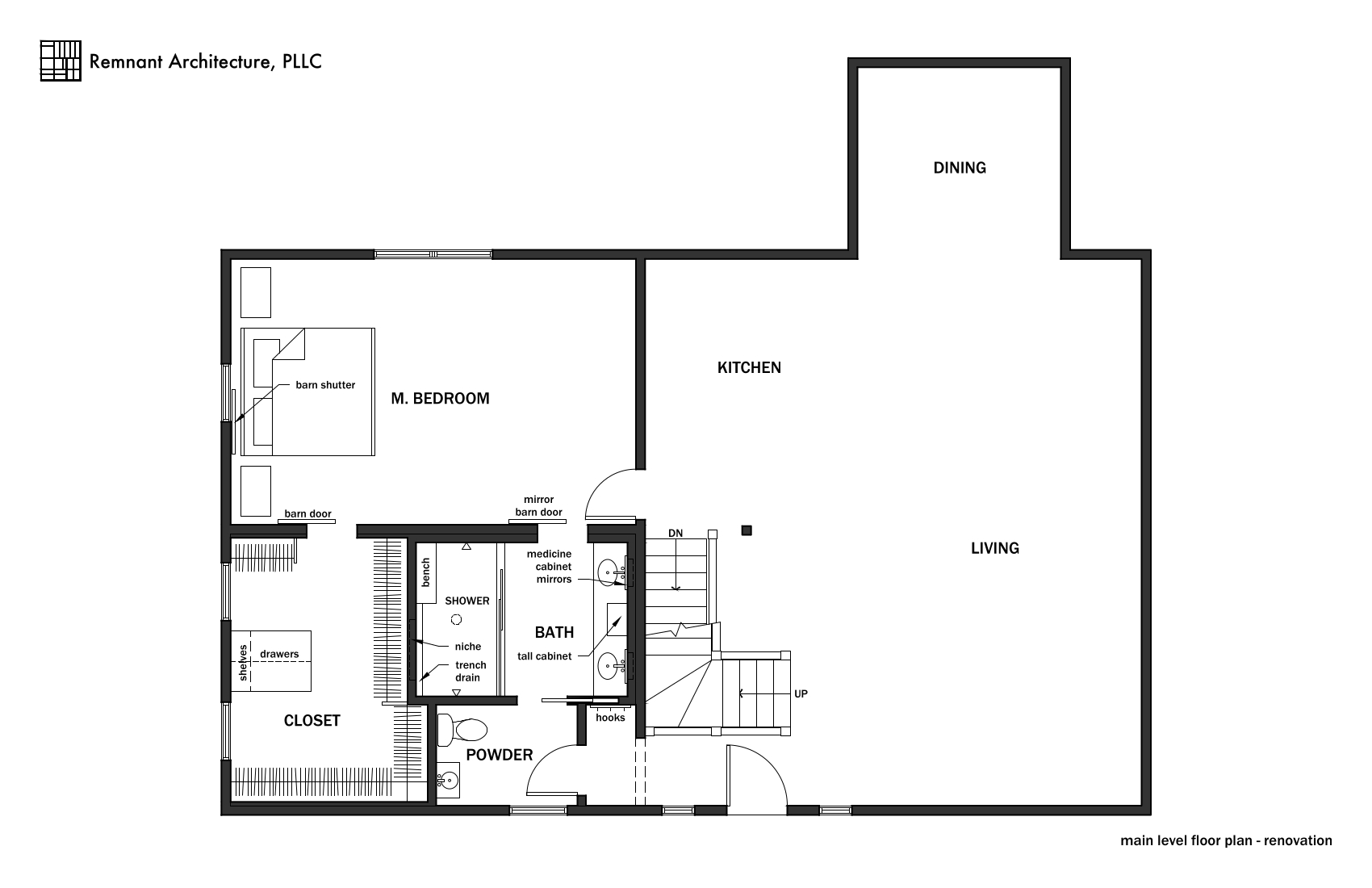
Knoxville Log Cabin Master Bedroom Suite
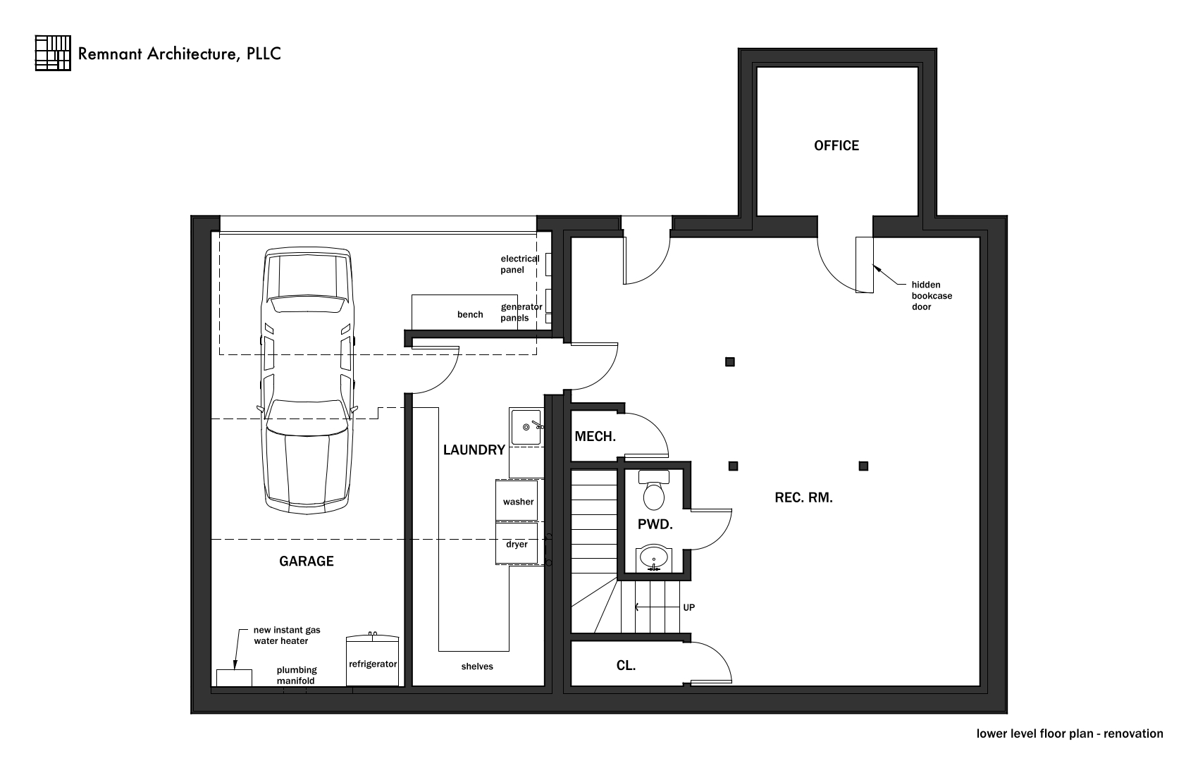
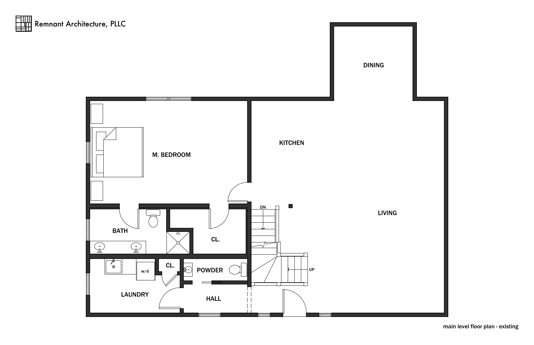
The homeowners purchased this modern-day log cabin in a location in Knoxville that gave them views and privacy. However, the master bedroom suite only had a small bathroom and closet. To gain a more spacious suite for themselves, they moved the laundry room to one bay of the basement garage and incorporated a powder room into their bathroom. All of the existing log walls (both exterior and interior) were incorporated into the design, as to not mess with the structure.
“We were concerned about maximizing the small spaces in our home to make the best use of the space. We live in a log cabin and almost all of the walls cannot be moved. Remnant Architecture’s expertise really showed us a different vision for the space we had to organize. They took into account all of our wants and needs and really came up with the optimal plan to create our much-improved space.”
Karen & Bill
homeowners
Contractor: Forks River Construction

Master Suite Shower

Master Suite Vanity

Main Level Renovation Floor Plan

Bathroom Renovation View

Bathroom Renovation View

Closet Renovation View

Closet Renovation View

Lower Level Renovation Floor Plan

Lower Level Renovation Floor Plan

Garage Renovation View

Main Level Existing Floor Plan

Lower Level Existing Plan
