Lakemoor Hills Ranch Remodel
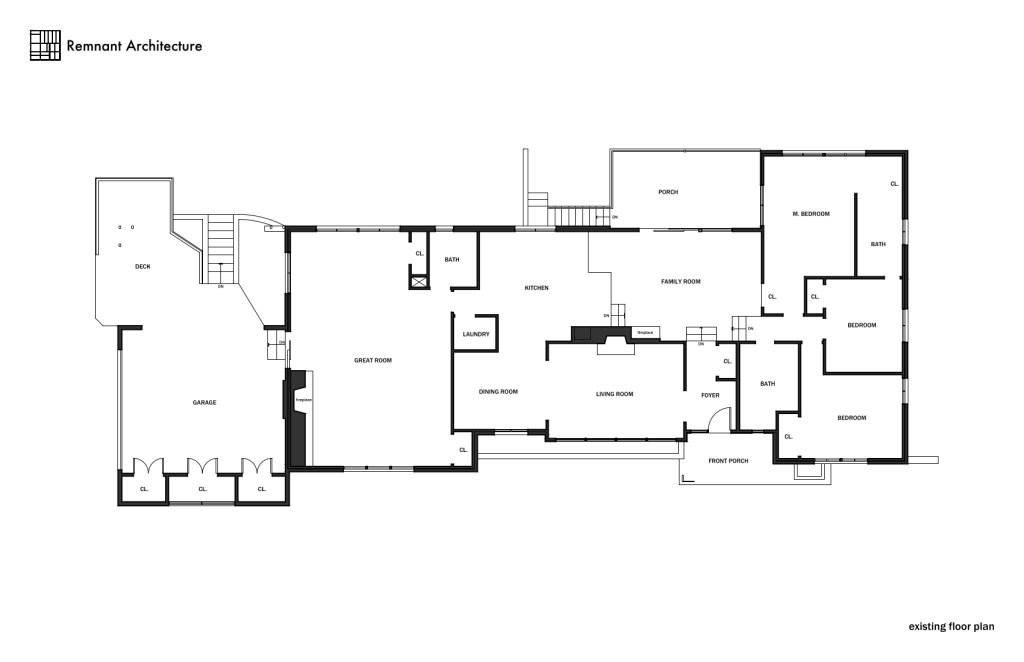
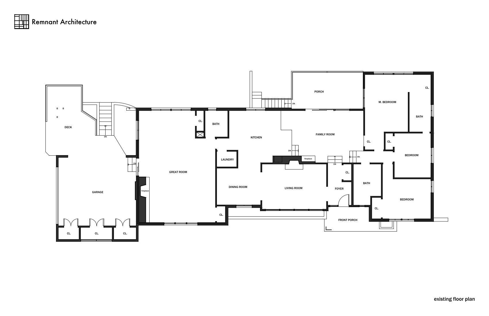
This house in a mid-century neighborhood on the south bank of the Tennessee River received a modernized layout, which included moving the front entry closer to the garage and driveway where guests arrive. A small bedroom adjacent to the master bedroom was converted into more bathroom and closet space for the master bedroom and also moved the laundry room closer to the bedrooms. An unused formal living room was converted into a bedroom so that the house still had three bedrooms as before the renovation. A sunken family room was raised to the level of the adjacent kitchen so that there was better flow in the open-concept living space. Relocating the front entry created an opportunity for a new front porch that was more prominent than the previous front porch but still blended with the original style of the house.

Front View After

Renovation Floor Plan

Renovation Elevations

Renovation Elevations

Front View Before

Existing Floor Plan

Existing Elevations

Existing Elevations
