Lenoir City Cookie-Cutter Renovation
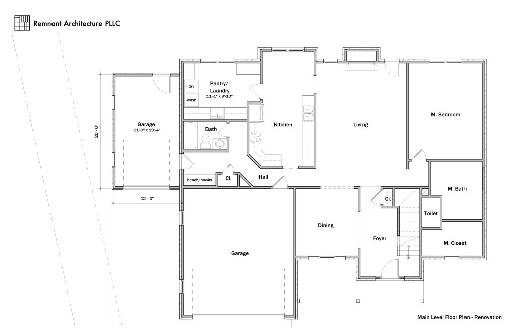
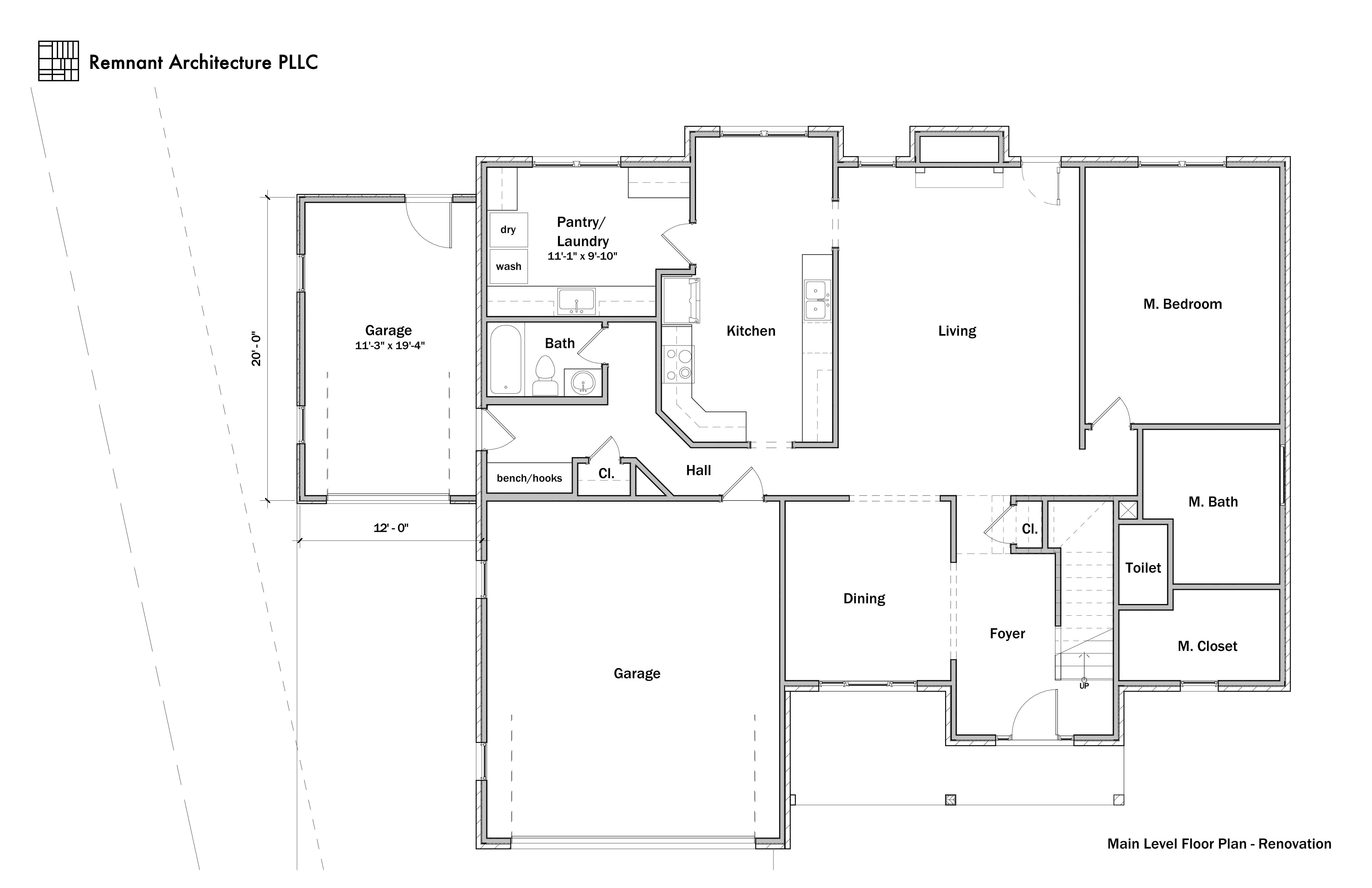
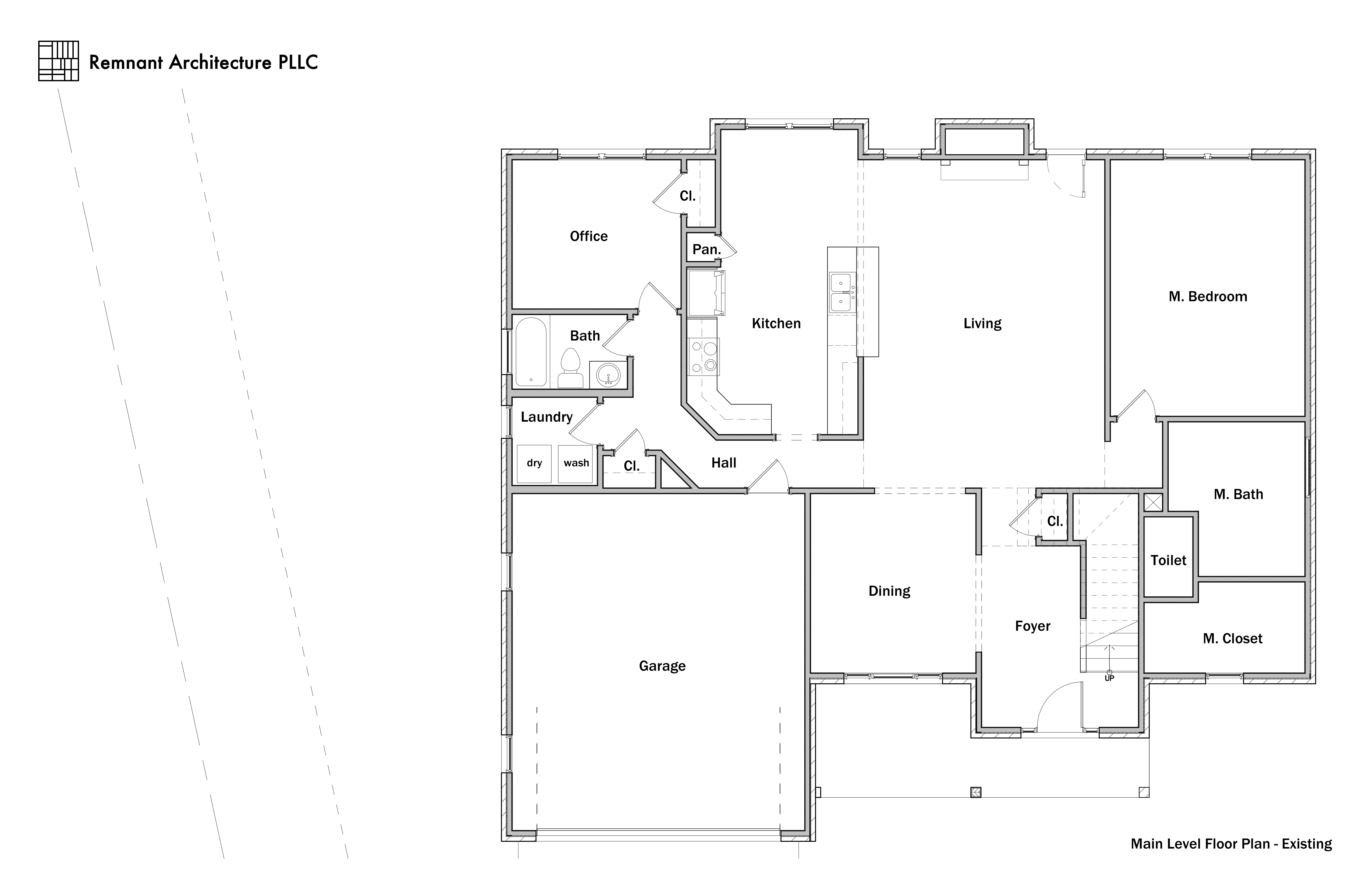
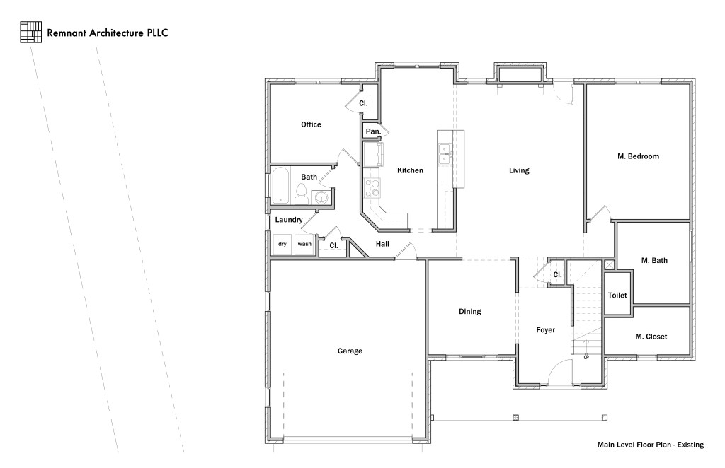
This house in a cookie-cutter neighborhood needed some changes to make it exactly what this family needed. Upstairs, they wanted an additional bedroom for their kids, as well as a different bathroom layout other than a Jack-and-Jill. The space above the main level vaulted living room was used to expand the upper level. An additional garage was added to the main level, and part of the attic was finished for an office. The office on the main level was converted into a combined laundry and pantry off the kitchen.

Renovation Main Level Floor Plan

Renovation Upper Level Floor Plan

Renovation Attic Level Floor Plan

Renovation Front Elevation

Renovation Garage Side Elevation

Renovation Rear Elevation

Renovation Master Side Elevation

Exiting Main Level Floor Plan

Existing Upper Level Floor Plan

Existing Front Elevation

Existing Garage Side Elevation

Existing Rear Elevation

Existing Master Side Elevation
