North Knoxville Craftsman Attic Bath Addition
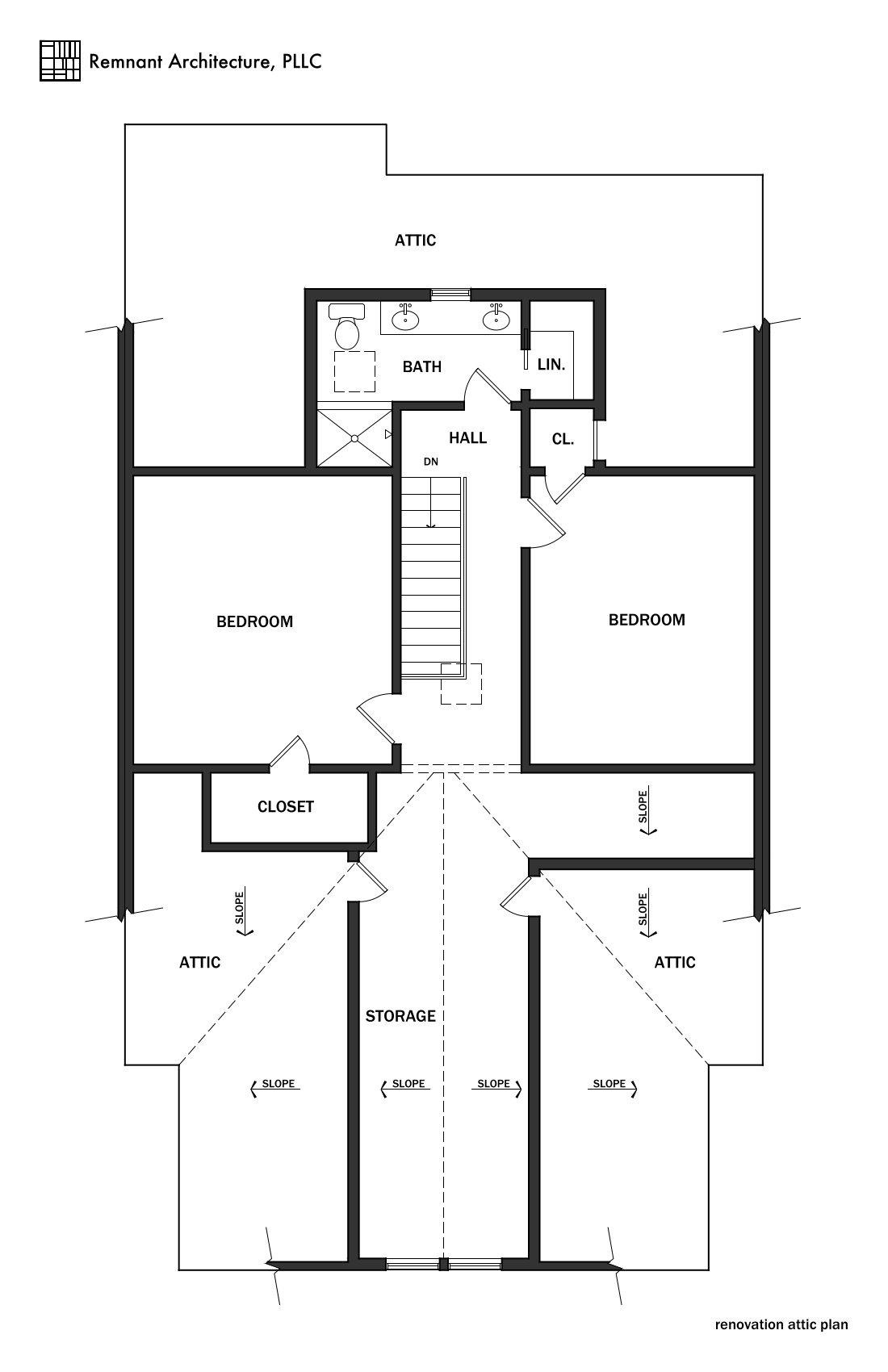
A craftsman bungalow had one full bath for a blended family to share so plans were made to convert their half attic bath into a full one to give everyone some breathing room. The first design attempt tried to fit the bath into the existing front attic gable roof, but the ceiling came out too low for a comfortable shower. So the design for the new full bath pivoted into a shed dormer addition on the rear of the house. The front attic gable became a great storage space instead.
Structural Engineer: FE Design & Engineering

Renovation Floor Plan

Renovation Building Section

Renovation Elevation

Existing Floor Plan

Existing Building Section
