North Knoxville Minimal Traditional Master Suite Addition
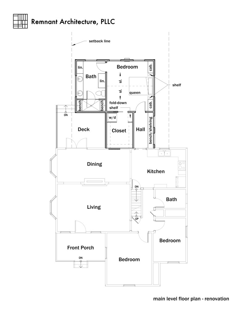
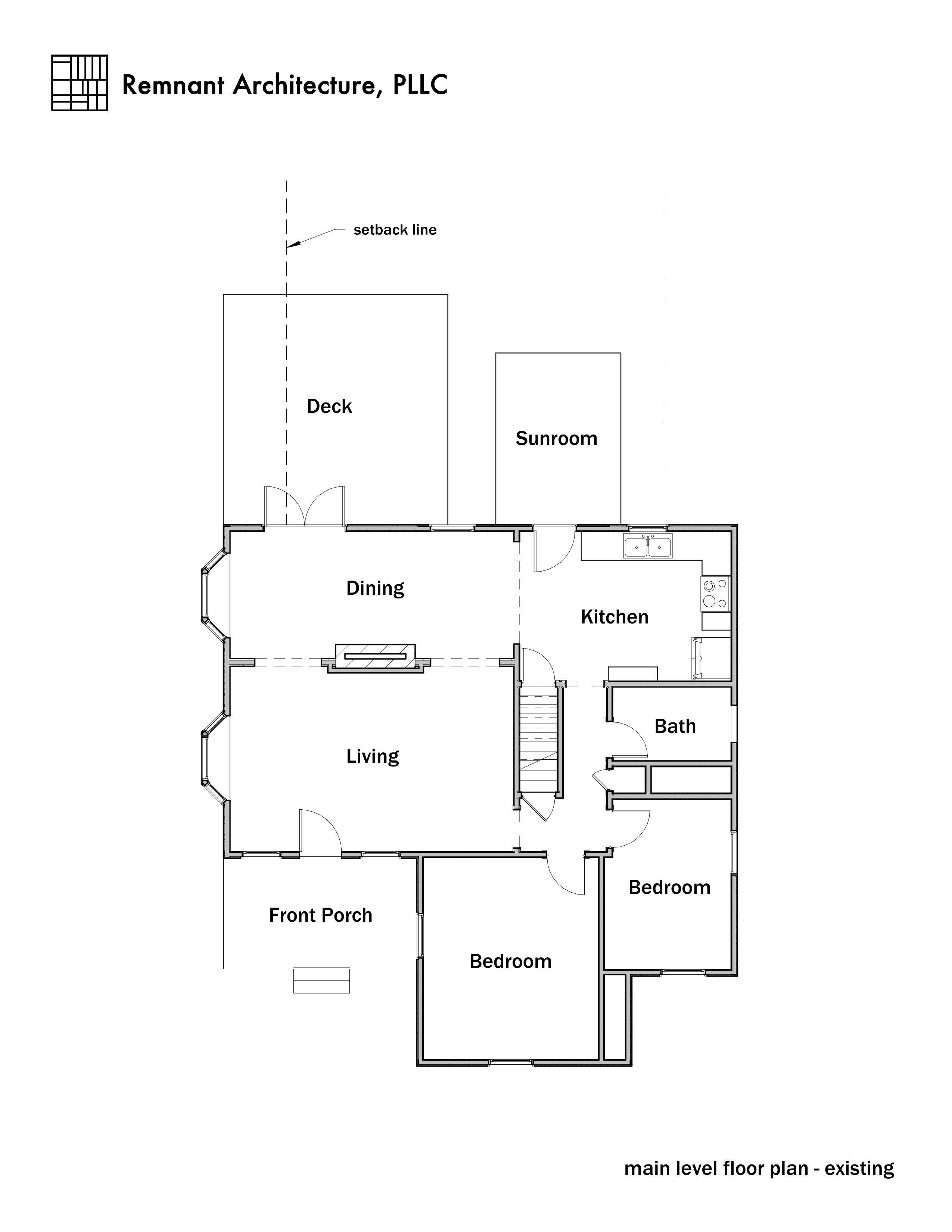
This small house of around 1,000 sf had only two bedrooms and one bath. The owners loved the neighborhood but wanted their own master suite so guests could have their own bathroom. The master suite addition of 459 sf was designed to fit on this tight corner lot, as well as within the Infill Housing Zoning Overlay requirements. The result is an addition that blends with the existing house in style and scale, while also leaving room for a usable backyard. The master closet provided an opportunity to move the laundry room out of the unfinished basement to be more convenient for the owners. The master bathroom features a double vanity, a shower with bench, and a linen closet, all of which were upgrades from the small bathroom in the original house. The master bedroom features a vaulted ceiling with built-ins surrounding the bed. A hallway with windows gracefully connects the addition to the existing house.
“Before working with Remnant Architecture, we had a fundamental lack of understanding regarding the processes required for such a project. We had no idea which agencies to go through, what steps were needed and in what order, and how to make an idea into plans and actions. Remnant Architecture made those things easy to understand. We were presented with several great design options and were able to pick the one we thought best suited our needs.”
Clint & Ashley
homeowners
Structural Engineer: FE Design & Engineering
Contractor: Forks River Construction

Renovation Side View

Renovation Rear View

Renovation Rear View

Renovation 3D View

Renovation Main Level Floor Plan

Renovation Front & Street Side Elevations

Renovation Rear & Interior Side Elevations

Existing Rear View

Exiting Main Level Floor Plan

Existing Front & Street Side Elevations

Existing Rear & Interior Side Elevations
