Sequoyah Hills Pool House / Accessory Dwelling Unit (ADU)
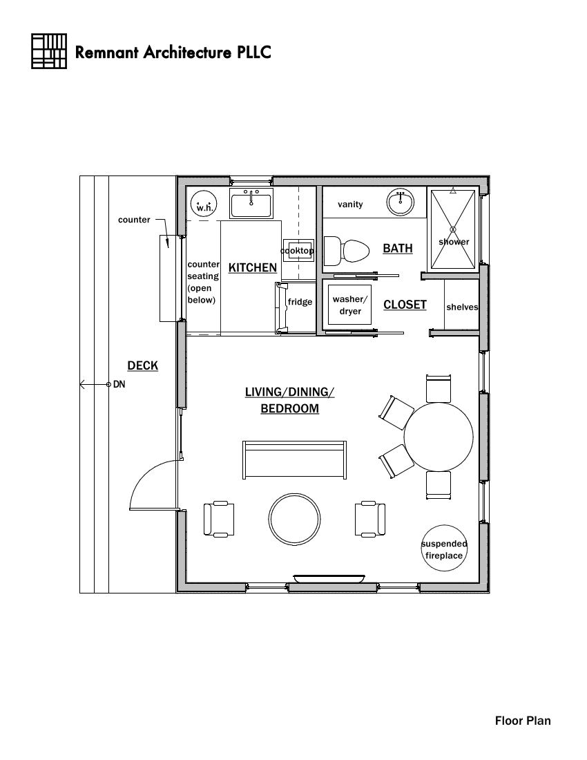
The owners of this house had previously renovated their home in the French Normandy Tudor style. A 432 sf pool house was added in their backyard to complement the existing house style. The exterior finishes of the pool house are stucco and half-timbers to match. Inside there is a living room, kitchen, and bath that are easily accessed from the pool. The pool house also doubles as a guest suite for anyone staying overnight.
Structural Engineer: FE Design & Engineering
Contractor: Lifestyle Pools

3D View

Site Plan

Floor Plan

Driveway & Pool Exterior Elevations

Rear & Side Exterior Elevations

Building Section

Existing House
