South Knoxville Ranch In-Law Suite Addition
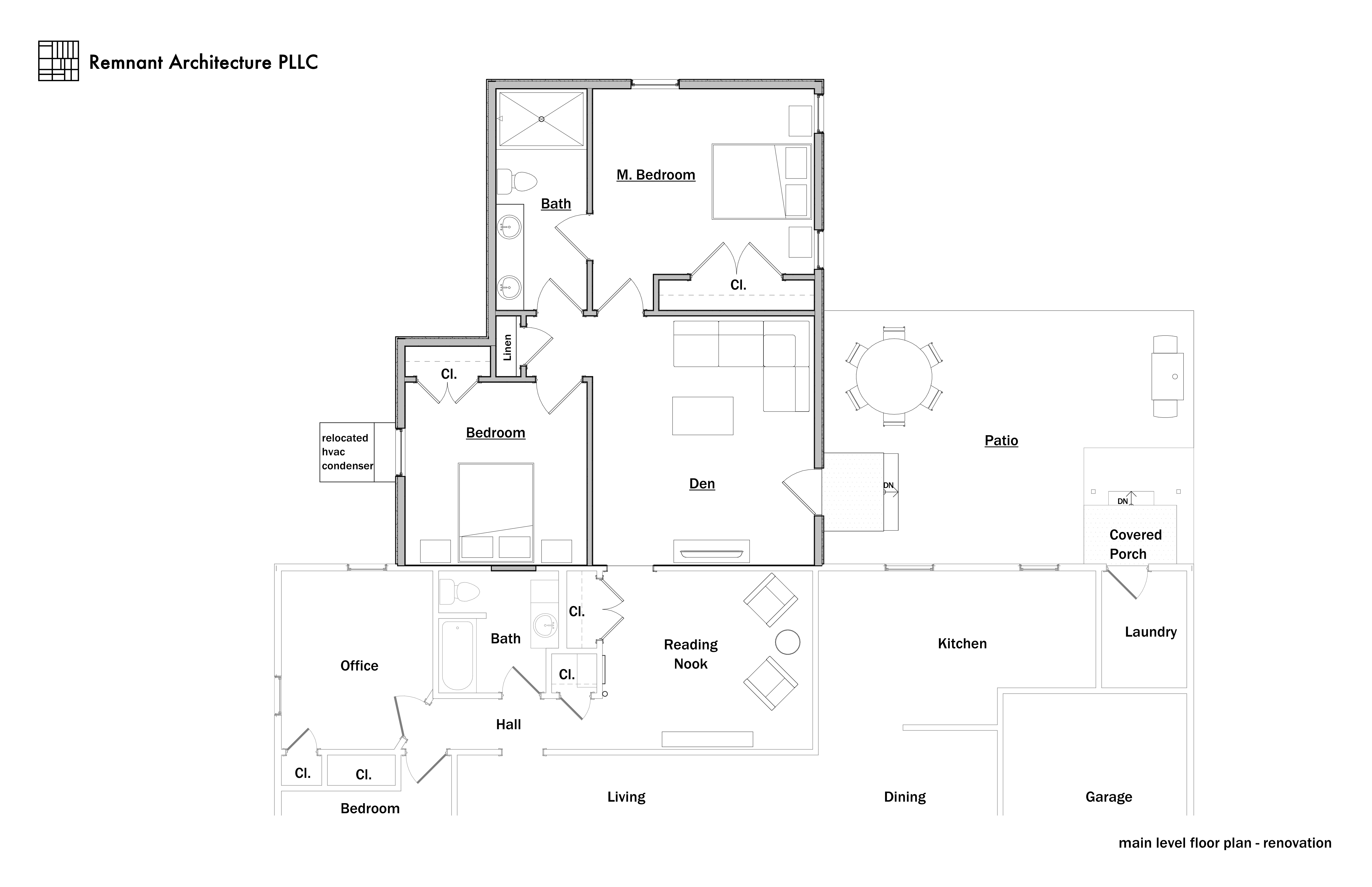
A three bedroom, one bath ranch house was expanded to become a multi-generational home. An existing bedroom was converted into a reading nook and a passageway to the addition. The addition included two bedrooms, one bath, and a den, bringing the house to four bedrooms and two baths total. The concept behind the addition was to allow aging parents to live with the couple. The addition also provided a master suite, which was previously lacking. The den gave the family secondary living space.

Renovation 3D View

Renovation Main Level Floor Plan

Renovation Rear Elevation

Renovation Side Elevations

Exiting Main Level Floor Plan

Existing Rear Elevation

Existing Side Elevations
