When you hire an architect, they will create drawings to communicate the design to you, your contractor, and the building department. However, depending on how far along a project is, the same drawing (such as a floor plan) will contain different information. Design drawings and construction drawings have different purposes.
Design Drawings
Design drawings are created at the beginning of the project to give you the overall concept of the design. In order for the design to be easily understood, only minimal information is included on these drawings. This is not the time to get bogged down with door sizes, but room sizes are helpful for reference. During the design phase of a project, walls and rooms will move around as different layouts are considered. Furniture is often shown so you can see how you will use the space when completed. The architect is working to fit all the pieces together to find the right fit for you.
The design drawings typically include a floor plan. Depending on the scope of your project, exterior elevations and a site plan may also be included. Design drawings don’t have all the information needed for the contractor to construct the project or to get a building permit. However, they can be used to get a certificate of appropriateness from the planning department if the project is in an overlay district that needs extra approvals.


example design drawing floor plans




example design drawing exterior elevations
Construction Drawings
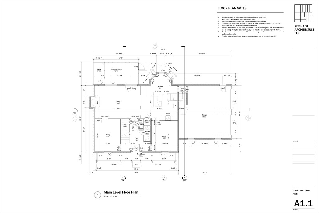
Construction drawings begin once you approve an overall design. This doesn’t mean that you can’t make minor adjustments like changing a door, but most of the walls should remain in their position from the design drawings. At this stage the architect is adding all the information the building department will need for their review, as well as the information the contractor needs to build the project. Any major changes at this point will likely result in additional fees. Additionally, the structural engineer will make calculations based on the layout during this phase so if the walls move significantly, they will likely have to recalculate and charge an additional fee.
Information that will be added to the design drawings (floor plans, exterior elevations, site plan) will include more dimensions beyond room sizes, along with notes showing how the project will meet building codes and other important details for the contractor to know.
Besides adding dimensions and notes to the design drawings, the architect and structural engineer will create new drawings to complete the construction set. These might include demolition plans, sections, roof plan, foundation plan, floor/roof framing plans, interior elevations, and door/window schedules. The final construction drawing set will be stamped by the architect and structural engineer to signify that they are complete to the building department.


example construction drawing floor plans


example construction drawing exterior elevations
If you want to know more about plan, elevation, or section drawings see this article.
Fill out the new client application to work with Remnant Architecture and get started on your home design.

Leave a comment